Automatyczna linia ROTAXOR Axor Ocrim nadaje się do suszenia ryżu Quick Cook.
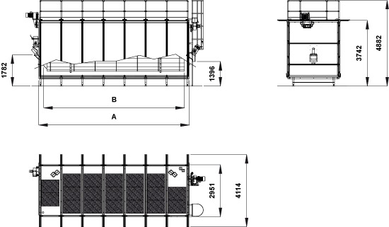
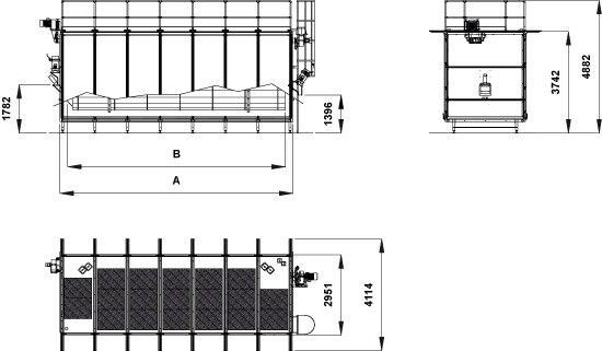
Obrotowy bęben, wraz ze stałą wewnętrzną wentylacją sektorów, zapewnia homogeniczne suszenie ryżu.
Kompletne linie Rotaxor składają się z:
– Samozaciskowe nóżki pozwalające wyrównać maszyny do każdego rodzaju podłóg.
– Ramy nośne są całkowicie wykonane z blachy ciesielskiej i ze stali nierdzewnej, aby zapewnić stabilność i dłuższą żywotność całej instalacji.
– Obrotowy bęben składa się z 24 sektorów i jest w całości wykonany ze stali nierdzewnej.
– Podwójne silniki dla dwóch oddzielnych obrzeży wykonanych przez silniki z przekładnią sterowaną falownikiem, aby uniknąć ewentualnego skręcenia.
– Możliwość dzielenia maszyny na różne obszary regulacji temperatury / wilgotności kontrolowane przez sondy Rotronic.
– Elektryczne wentylatory osiowe znajdują się w górnej części bębna i są wyposażone w specjalne silniki elektryczne odpowiednie do wysokich temperatur i aluminiowe łopatki do odlewania z wysokim przepływem powietrza.
– Wysokowydajne wężownice grzewcze z przyłączami kołnierzowymi UNI 2282.
– Płyty z włókna szklanego o dużej gęstości pokryte płytkami ze stali nierdzewnej po wewnętrznej stronie i silikonowymi uszczelkami.
– Układ hydrauliczny z 3-drogowym zaworem pneumatycznym, pompą, obejściem, zaworem, miernikami i termometrami.
– System wymiany powietrza realizowany przez kanały i zawór motylkowy ze stali nierdzewnej w komplecie z elektrycznymi wentylatorami ekspelera i wentylatorami wlotowymi z nagrzewnicą wstępną.
– Schody i balustrady docierają do dachu maszyny wyprodukowanej zgodnie z międzynarodowymi zasadami bezpieczeństwa.
– Panel elektryczny do sterowania i automatyzacji za pomocą oprogramowania PLC i nadzoru na komputerze osobistym.
– Pomoc on-line.

